+ Neubau
+ Umbau und Anbau
+ Dachgeschoss-Ausbau
+ Sanierung
+ Energieberatung
+ Home
+ Projekte
+ Profil
+ Kontakt
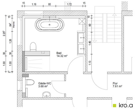
Bei dem Raum im OG des Wohnhauses handelte es sich um eine Wohnstube, die komplett entkernt und in ein modernes Familienbad umgebaut wurde.
Grundriss
Zurück zur Umbau und Anbau-Projektliste