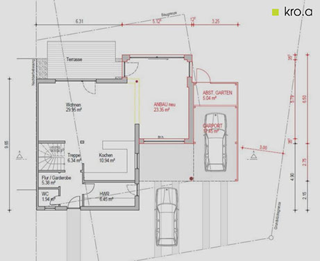
Die vorhandene Doppelhaushälfte wurde durch den Anbau um ca. 48 m² Wohnfläche und einen Carport erweitert.
Der Carport sowie der gartenseitige Vorbau wurden mit Trespa-Platten verkleidet, um diese Baukörper vom Haupthaus abzusetzen.
Der Anbau ist zum Garten mit großen Fensterflächen geöffnet und schafft zusätzlichen Wohnraum im EG.
Durch die offene Grundrissgestaltung verliert sich der Eindruck einer schmalen Doppelhaushälfte.
Grundriss Erdgeschoss
Schnittzeichnung des Anbaus
Ansicht im CAD- Modell
Der Anbau mit Carport nach Fertigstellung